Телефон: ‭+7 (903) 060-79-41‬
Нижегородская обл., г.Кстово,
ул. 1 Мая, строение 1

Сервисные колонки

Сервисная колонка IP44

Сервисные колонки с кранами подачи воды и электрическими разъемами с классом защиты IP 44 освещают причалы в темное время суток и обеспечивают подачу воды и электроэнергии на пришвартованные суда.

Колонка выполнена из импортной нержавеющей стали AISI 304, а также может быть окрашена порошковым полимерным покрытием в любой цвет по желанию заказчика. В стандартную комплектацию входит кран для подачи воды, УЗО, две розетки 16 либо 32 А IP 44. Комплектация также может быть изменена по желанию заказчика и оснащена любыми другими розетками, а также внешним сервисным окном на корпусе для управления автоматами.

 

Сервисная колонка IP67

Сервисные колонки с кранами подачи воды и электрическими разъемами с классом защиты IP67 освещают причалы в темное время суток и обеспечивают подачу воды и электроэнергии на пришвартованные суда. Они имеют полностью герметичную конструкцию.

Колонка выполнена из импортной нержавеющей стали AISI 304. В стандартную комплектацию входит кран для подачи воды, УЗО, две розетки 16 либо 32 А IP67, внешнее сервисное окно с классом защиты IP67. Комплектация также может быть изменена по желанию заказчика и оснащена любыми другими розетками любой силы и напряжения тока. Колонки оснащены сервисным окном на корпусе для управления автоматами, а сварные швы загерметизированы силиконовым профилем.

 

 

Заказать изготовление сервисных колонок можно по телефону: +7 (903) 060-79-41
Или используя нашу форму обратной связи

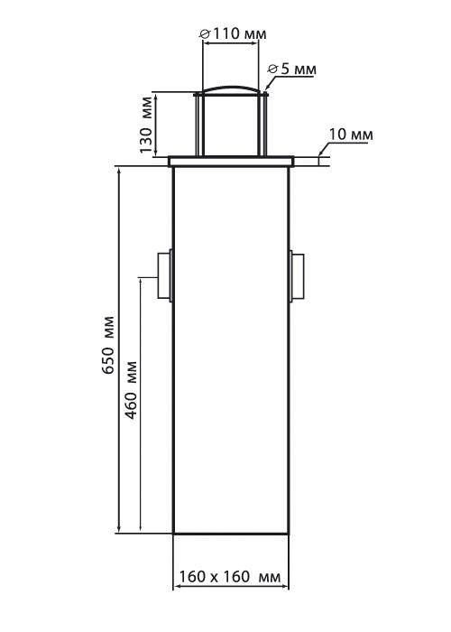
Размеры сервисных колонок

Фотографии сервисных колонок

Установленные сервисные колонки

© «Немо», 2009
© Разработка сайта ООО «СолидСайт», 2009-2018
Нижегородская обл., г.Кстово,
ул. 1 Мая, строение 1
‭+7 (903) 060-79-41‬